Articles in category 2016
-
A presentation of FreeCAC Arch workbench
A presentation of FreeCAC Arch workbench at Pordenone Tech 201631.12.2016 in freecad , opensource , talks , video -
The talk about FreeCAD & BIM I gave at LGM in London this year
The talk about FreeCAD & BIM I gave at LGM in London this year20.12.2016 in freecad , opensource , talks , video -
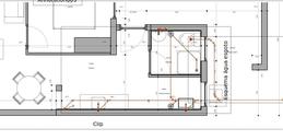
More plumbing in FreeCAD... This is how it gets rendered in TechDraw
More plumbing in FreeCAD... This is how it gets rendered in TechDraw18.11.2016 in freecad -
New opening symbols for Arch doors/windows in FreeCAD
New opening symbols for Arch doors/windows in FreeCAD03.11.2016 in freecad , opensource -
FreeCAD Arch support in TechDraw at work...
FreeCAD Arch support in TechDraw at work...02.11.2016 in freecad -
New rewritten Arch Schedule tool in FreeCAD,
New rewritten Arch Schedule tool in FreeCAD,31.08.2016 in freecad , opensource -
Misc images for residential projects by Osmose architecture
Misc images for residential projects by Osmose architecture18.08.2016 in works , 3d , blender -
Installation drawings for a work of art in ceramics
Installation drawings for a work of art in ceramics18.08.2016 in works , techdrawing -
Another office transformation, with OpeningDesign
Another office transformation, with OpeningDesign18.08.2016 in works , techdrawing , blender , 3d -
Office rehab in the US, with OpeningDesign
Office rehab in the US, with OpeningDesign18.08.2016 in works , techdrawing -
Os slides da minha fala de hoje na UFABC:
Os slides da minha fala de hoje na UFABC:16.08.2016 in talks -
Unidade Básica de Saúde Riacho Fundo
Unidade Básica de Saúde Riacho Fundo04.05.2016 in architecture , projects -
FreeCAD Arch Workbench presentation
FreeCAD Arch Workbench presentation25.02.2016 in freecad , talks , opensource , video