Articles in category works
-
2019 works - interactive 3D models
2019 works - interactive 3D models22.05.2019 in 3d , works , blender -
Art installation and furniture design
Art installation and furniture design22.05.2019 in 3d , works , blender , freecad -
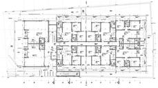
Misc images for residential projects by Osmose architecture
Misc images for residential projects by Osmose architecture18.08.2016 in works , 3d , blender -
Installation drawings for a work of art in ceramics
Installation drawings for a work of art in ceramics18.08.2016 in works , techdrawing -
Another office transformation, with OpeningDesign
Another office transformation, with OpeningDesign18.08.2016 in works , techdrawing , blender , 3d -
Office rehab in the US, with OpeningDesign
Office rehab in the US, with OpeningDesign18.08.2016 in works , techdrawing -
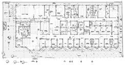
More construction drawings for a low-income residential project
More construction drawings for a low-income residential project01.10.2015 in works , techdrawing -
3D image we did for an industrial project...
3D image we did for an industrial project...01.10.2015 in works , 3d , blender -
More construction documents for low-income projects in Brazil. Again, not much to be done in terms of architectural quality, but...
More construction documents for low-income projects in Brazil. Again, not much to be done in terms of architectural quality, but...01.10.2015 in works , techdrawing -
Design work for our friends at rankdone. We've done the logo, marketing material, style guides, printed material, and icons...
Design work for our friends at rankdone. We've done the logo, marketing material, style guides, printed material, and icons...01.10.2015 in works -
3D images for an expo center project...
3D images for an expo center project...01.10.2015 in works , 3d , blender -
A quick setup of an alternative version for an older project of last year. We tried to give it that 60's airline feel...
A quick setup of an alternative version for an older project of last year. We tried to give it that 60's airline feel...01.10.2015 in works , 3d , blender -
More construction documents for a low-income residential project. Obviously not much to be done in such projects in term of...
More construction documents for a low-income residential project. Obviously not much to be done in such projects in term of...01.10.2015 in works , techdrawing -
Posting a couple of works we've been doing this year...
Posting a couple of works we've been doing this year...01.10.2015 in works , techdrawing -
Pirituba services center
Pirituba services center23.09.2015 in architecture , projects , blender , works -
A couple of quick images we did for an interior design project...
A couple of quick images we did for an interior design project...26.11.2014 in works , 3d , blender -
Prefeitura de Belo Horizonte
Prefeitura de Belo Horizonte29.07.2014 in architecture , projects , works , 3d -
Costa do Ipê base project
Costa do Ipê base project18.02.2013 in works , architecture , projects , techdrawing -
o video do nosso projeto para o Costa do Ipê Parque shopping.
o video do nosso projeto para o Costa do Ipê Parque shopping.06.11.2011 in works , 3d , animations , video -
Costa do Ipê Parque Shopping
Costa do Ipê Parque Shopping06.11.2011 in works , projects , architecture , 3d -
Existing shopping animation
Existing shopping animation12.10.2011 in works , animations , 3d , video -
Meanwhile, we've been doing some background work on a really big project...
Meanwhile, we've been doing some background work on a really big project...05.04.2011 in works , techdrawing -
2 hand drawings fo an "Interior Mineiro"-style house
2 hand drawings fo an "Interior Mineiro"-style house05.04.2011 in works , sketches -
One more shopping mall animation
One more shopping mall animation23.02.2011 in works , animations , 3d , video -
And here are a couple of still images extracted from the above animation...
And here are a couple of still images extracted from the above animation...23.02.2011 in 3d , works -
Execution project of a dispensary
Execution project of a dispensary16.02.2011 in works , techdrawing -
2 more hand drawings. Projects by Adriana Furst.
2 more hand drawings. Projects by Adriana Furst.08.12.2010 in works , sketches -
Two renderings of a project by Luc Nelles in Belgium...
Two renderings of a project by Luc Nelles in Belgium...03.12.2010 in works , blender , 3d -
Execution drawings of a small building
Execution drawings of a small building27.11.2010 in works , techdrawing -
2 images of a house designed by Claudia Bassichetto and others for the NGO India2Care of our friend Alexandre.
2 images of a house designed by Claudia Bassichetto and others for the NGO India2Care of our friend Alexandre.27.09.2010 in works , 3d -
A rendering of a house designed by our friends at Angelo & Zechetti...
A rendering of a house designed by our friends at Angelo & Zechetti...27.09.2010 in works , 3d -
3 hand-drawn images of a shopping mall project
3 hand-drawn images of a shopping mall project21.07.2010 in works , sketches -
Yet another shopping mall animation!
Yet another shopping mall animation!19.06.2010 in works , animations -
World cup stadiums in the blender game engine
World cup stadiums in the blender game engine18.06.2010 in works , 3d , opensource , blender -
a quick image we did for a school extension proposal:
a quick image we did for a school extension proposal:27.05.2010 in 3d , works -
Two more hand drawings, 100% done in gimp... Project by Adriana Furst
Two more hand drawings, 100% done in gimp... Project by Adriana Furst20.05.2010 in works , sketches -
More images of a recent 3D work. Project by HVC arquitetura
More images of a recent 3D work. Project by HVC arquitetura24.04.2010 in works , 3d -
Renderings of a house in the nowhere. Project by Ferraz & Santa Cruz arquitetos
Renderings of a house in the nowhere. Project by Ferraz & Santa Cruz arquitetos06.04.2010 in works , 3d -
Another house handpainting! Project by Adriana Furst
Another house handpainting! Project by Adriana Furst23.03.2010 in works , sketches -
Two hand-made drawings of a country house project...
Two hand-made drawings of a country house project...06.12.2009 in works , sketches -
O Teatro Magico website
O Teatro Magico website28.11.2010 in works , webdesign , opensource , wordpress -
Esboços para uma casa
Esboços para uma casa31.10.2009 in architecture , works , projects , sketches -
An unfortunately not approved design for Paulo Teixeira's website:
An unfortunately not approved design for Paulo Teixeira's website:28.11.2010 in works , webdesign , wordpress -
2 sketches of a country home project
2 sketches of a country home project11.08.2009 in works , sketches -
A quick sketch drawing for a house
A quick sketch drawing for a house15.07.2009 in works , sketches -
3D images for a police station project
3D images for a police station project08.07.2009 in works , 3d -
A new theme for the inventario de receitas
A new theme for the inventario de receitas09.06.2009 in works , webdesign -
A couple of still images from the latest animation we did:
A couple of still images from the latest animation we did:14.05.2009 in works , 3d -
A new architecture walkthrough animation
A new architecture walkthrough animation13.05.2009 in works , animations -
Two quick renderings for a shopping mall
Two quick renderings for a shopping mall11.05.2009 in works , 3d -
A "real" virtual 3D environment we just made. The biggest image is 28mx5m! The largest rendering I've ever done...
A "real" virtual 3D environment we just made. The biggest image is 28mx5m! The largest rendering I've ever done...11.05.2009 in works , 3d -
3 sheets from the latest project we detailed...
3 sheets from the latest project we detailed...11.05.2009 in works , techdrawing -
A wordpress theme I just made for the Trezentos site. The theme can be downloaded from my deviantArt page.
A wordpress theme I just made for the Trezentos site. The theme can be downloaded from my deviantArt page.28.11.2010 in works , opensource , webdesign , wordpress -
a residential project we've been working on lately:
a residential project we've been working on lately:07.03.2009 in works , techdrawing